Archives

CANDE (49)

Les Hauts de Mesliers 3

Informations du terrain

CANDE (49)

12 terrains

A partir de 37450€

Situés dans un environnement agréable et calme, ces 12 terrains à bâtir offrent une belle opportunité pour concrétiser votre projet de construction. Implantés à Candé, une commune dynamique disposant de toutes les commodités (commerces, écoles, services), ces lots bénéficient d’un cadre de vie idéal entre tranquillité et proximité des axes principaux.

Bon à savoir :

La grille des prix

Lot Surface m² Façade m Prix Disponibilité Plan
15 461 17,99 40 500€ Libre
16 454 16,00 40 000€ Libre
17 484 17,00 41 500€ Libre
18 440 15,20 39 400€ Libre
19 471 15,49 41 000€ Libre
20 475 22,00 41 000€ Option
21 464 21,67 40 500€ Option
22 430 14,36 38 750€ Option
23 415 14,30 37 450€ Libre
24 414 14,25 37 450€ Libre
25 421 14,50 38 100€ Option
26 429 12,96 38 750€ Libre

Branchements réalisés :

  • Eau Potable
  • Electricité
  • Téléphone
  • Branchement eaux pluviales

A prévoir en plus du prix :

  • Frais de notaire selon le barême en vigueur :
  • Frais d'implantation par géomètre 360 € TTC
  • Provision de dégradations : 300€
  • Taxe raccordement à l'égout : 1110€ ( au 01/01/2022)
  • Taxes d'aménagement : 5%
  • ASL : 100€

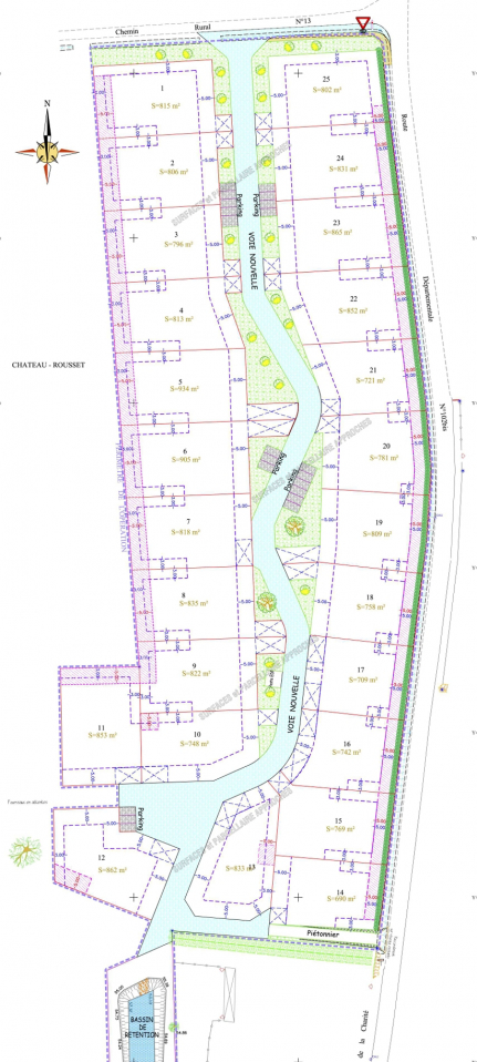
Plan du Lotissement

Cliquez pour zoomer

Nos partenaires sur ce projet

Le Notaire

OFFICE NOTARIALE EMERIAU

2 Rue Charles de Gaulle - 49 440 CANDE

Tél: 02 41 26 19 45

Le Géomètre

CABINET EXPERTS GUIHAIRE

8 place de la loge 49500 SEGRE en ANJOU BLEU

Tél: 02.41.92.22.22

FONCIER AMENAGEMENT
Des espaces de vies agréables en
harmonie avec l’environnement

51A, Chemin de la Brosse
49130 LES PONTS-DE-CE


Appelez-nous !


Vous avez un projet, une question ?

TRELAZE « le Puits Trouflet 2 » (49)

Le Puits Trouflet 2

Informations du terrain

TRELAZE « le Puits Trouflet 2 » (49)

5 terrains

A partir de 105000€

Bon à savoir :

La grille des prix

Lot Surface m² Façade m Prix Disponibilité Plan Étude de sol
1 317 NS 115 000€ Option
2 280 13,20 Réservé Réservé
3 294 NS Réservé Réservé
4 317 11,50 Réservé Réservé
5 271 11,60 105 000€ Option

Branchements réalisés :

  • Eau Potable
  • Electricité
  • Tout à l'égout
  • Téléphone
  • Gaz de Ville

A prévoir en plus du prix :

  • Frais de Notaire selon le barême en vigueur
  • Taxes d'aménagement
  • Provisions de dégradations: 1000 €
  • Implantation et rebornage géomètre: 540 €
  • Gestion des eaux pluviales à la parcelle ( voir note hydraulique)

Plan du Lotissement

Cliquez pour zoomer

Nos partenaires sur ce projet

Le Notaire

Maître Geoffrey VINCENT

1 Rue du petit Vivier, BOUCHEMAINE

Tél: 02 41 34 89 23

Le Géomètre

AIRGEO

3 bis rue de la Préfecture, 49100 ANGERS

Tél: 02 41 88 62 71

FONCIER AMENAGEMENT
Des espaces de vies agréables en
harmonie avec l’environnement

51A, Chemin de la Brosse
49130 LES PONTS-DE-CE


Appelez-nous !


Vous avez un projet, une question ?

ALLEUDS (LES) « Le Prieuré (49)

Le Prieuré

Informations du terrain

ALLEUDS (LES) « Le Prieuré (49)

6 terrains

A partir de 58000€

6 terrains à bâtir situés entre la rue du Verger et le chemin Vert, derrière L'Eglise et la Mairie.
bordés d'un jardin public.

Périmètre des Bâtiments de France
Zone 1AU du PLU de BRISSAC LOIRE AUBANCE

La grille des prix

Lot Surface m² Façade m Prix Disponibilité Plan Étude de sol
1 480 13.64 Réservé Réservé
2 403 13.57 Réservé Réservé
3 402 13.30 Réservé Réservé
4 411 13.60 Réservé Réservé
5 437 16.91 58 000€ Option
6 491 15.41 60 000€ Option

Branchements réalisés :

  • Eau Potable
  • Electricité
  • Tout à l'égout
  • Téléphone

A prévoir en plus du prix :

  • Frais de notaire selon le barème en vigueur
  • Visa implantation géomètre : 588€TTC
  • Taxe d'Aménagement liée à la surface du pavillon construit
  • Taxe de Raccordement à l'Égout : 15€ le m² de surface de plancher du pavillon construit
  • Provision de dégradation : 1 000€ à verser lors de l'acquisition du terrain
  • Frais ASL : 200€
  • Gestion des eaux pluviales à la parcelle, voir note hydraulique

Plan du Lotissement

Cliquez pour zoomer

Nos partenaires sur ce projet

Le Notaire

Maître Benoît MAUPETIT

4, rue du Maréchal Joffre - 49 320 BRISSAC LOIRE AUBANCE

Tél: 02 41 91 22 12

Le Géomètre

INITIO CONSEILS

12, Allée Joseph Touchais - 49 700 DOUE LA FONTAINE

Tél: 02 41 59 10 33

FONCIER AMENAGEMENT
Des espaces de vies agréables en
harmonie avec l’environnement

51A, Chemin de la Brosse
49130 LES PONTS-DE-CE


Appelez-nous !


Vous avez un projet, une question ?

IMG 0368 1024x768
IMG 0368 1024x768
IMG 0368 1024x768
IMG 0368 1024x768
IMG 0368 1024x768
IMG 0368 1024x768
IMG 0368 1024x768
IMG 0368 1024x768
IMG 0368 1024x768